- HOME
- 施工事例一覧
- リフォーム部位ごとで選ぶ施工事例事例一覧
- 総合リフォーム事例一覧
- 長野市 1階リフォーム工事 F様
長野市 1階リフォーム工事 F様
![]() |
以前にリフォームさせていただいたお客様です。 台風で被害を受けて洪水によって1階がそっくり飲まれてしまい、生活が出来なくなってしまい、リフォームのご依頼をしてくださいました。 |
|---|
![]() |
![]() |
施工事例データ
|
|
||||
|
|
||||
|
|
![]() |
![]() |
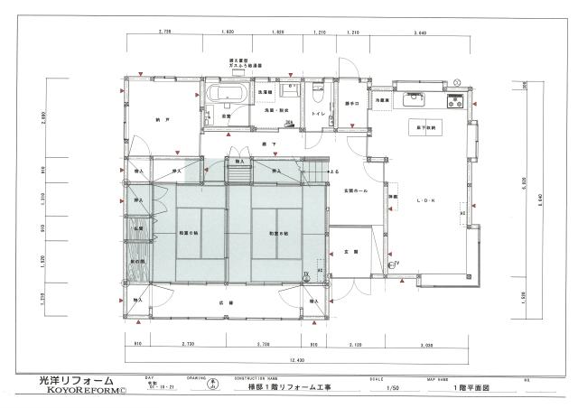
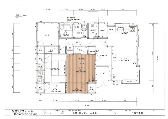
1階のすべての部屋を全面リフォーム。台風による被害もあり、家族の人数も年ごとに変わっていきます。それに合わせてリフォームしました。 |
|---|
![]() |
![]() |
![]() |
| 水に浸かってしまったので、乾かさないといけません。まだ暑い時期なので比較的乾きやすいです。 | 石灰が巻かれて真っ白になっています。 |
![]() |
![]() |
| 遠目から見るとまだ綺麗ですが、ところどころボロボロになっていました。 | トイレも全部新しくします。 |
![]() |
![]() |
![]() |
| 乾いてから、床の骨組みを復旧していきます。根太、大引等全部新しくします。 | 1階は天井以外、すべて直していきます。 |
![]() |
![]() |
| 床の骨組みが終わったら、シロアリも含め細菌の消毒をします。 | 消毒が終わり、乾いたら断熱材を詰めていきます。 |
![]() |
![]() |
| 下地の合板を張っていきます。 | ユニットバスが来ました。たくさんの部品と仕上げ材が入ってます。 |
![]() |
![]() |
| ユニットバスの組み立てをします。 | ユニットバスの組み立てが終わり、養生をします。 |
![]() |
![]() |
| フローリングを張ったら、床を養生して壁の下地を組んでいきます。 | 下地を組み終えたら、石膏ボードを張っていきます。 |
![]() |
![]() |
| キッチン回りも壁を張り終えましたので、キッチンを組んでいきます。 | 床框の施工です。大工さんにピッタリ入れてもらいました。 |
![]() |
![]() |
| 床板をのせるため根太組みをします。 | 床板をのせて完成です。 |
![]() |
![]() |
![]() |
| 災害に遭われて大変な思いをしたと思いますが、1階は全部綺麗になりました。 | ダイニングキッチンです。天井のクロスは張り替えました。 |
![]() |
![]() |
| トイレはタンクレスですっきり。手洗い器も付きました。 | 玄関はそのままに、枠と玄関収納を新しくしました。 |
![]() |
![]() |
| 和室が息を吹き返しました。新しい畳、襖と床の間を綺麗に塗装して仕上げました。 | もう一つの和室は洋室にしました。和室のテイストを残した洋室になりました。 |
































































