- HOME
- 施工事例一覧
- リフォーム部位ごとで選ぶ施工事例事例一覧
- 総合リフォーム事例一覧
- 中野市 子供が帰ってきて暮らすリノベーション K様(こども未来支援事業対象)
中野市 子供が帰ってきて暮らすリノベーション K様(こども未来支援事業対象)
![]() |
長い間県外で暮らしていた子供が戻ってきて、一緒に暮らすためのリフォームです。古い家屋で今の住宅と比べると階高が低い建物ですが、何とか若い世代が暮らせるようにしてほしいとのご希望でした。 |
|---|
![]() |
![]() |
施工事例データ
|
|
||||
|
|
||||
|
|
![]() |
![]() |
木造2階建ての1.2階共リフォームする計画があり、1階はキッチンがあり使う頻度が高いためあまり使っていない2階から工事を始めることにしました。 階高が低いため天井高が取れないので梁型を出して天井を上げました。 増築も考えましたがコストがかかるため既存の構造体を生かしてリフォームになりました。 |
|---|
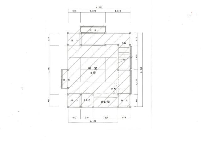
| 図面:リフォーム前 | 図面:リフォーム後 |
![]() |
![]() |
| リフォーム前の図面です。 | スケルトン解体をしてリフォームしました。 |
![]() |
![]() |
![]() |
![]() |
![]() |
| 隣接している吹き抜け部分も暗いためリフォームします。 | 収納が少ないためどうしても散らかってしまいます。 | 和室一間の部屋でトイレもなく暮らしにくいですね。 |
![]() |
![]() |
![]() |
![]() |
| 古い建物です。真っ黒い丸太梁が出てきました。 | 柱を入れ替えたり、床も壁も天井も新しくしました。 | ドア枠を取付て壁と天井にボードを張り上げます。 |
![]() |
![]() |
![]() |
| 断熱サッシに入替え、位置も前と変わったため、外壁工事も発生しました。 | 下地処理をして | クロスで仕上ていきます。 |
![]() |
![]() |
![]() |
| お母屋の吹抜け部分のリフォームです。壁がプリント合板で暗かったので明るいクロス貼りで仕上げました。 | 2階の和室がクローゼット付きの洋間に変わりました。 |
![]() |
![]() |
| 2階にトイレが無かったので新設しました。給排水の配管に苦労しました。これで暮らしやすくなります。 | 階段とトイレに接続する廊下です。画像にはありませんが、ウォークインクローゼットが隣にあり収納はバッチリです。 |





















































