- HOME
- 施工事例一覧
- リフォーム部位ごとで選ぶ施工事例事例一覧
- 浴室リフォーム事例一覧
- 長野市 2階の浴室リフォーム K様
長野市 2階の浴室リフォーム K様
![]() |
2階にある浴室で、トップライトの窓があり開放感があり、ロケーションもよくとてもいい浴室なんですが、冬の寒さはとても我慢できなくリフォームできるかご相談を受けました。 |
|---|
![]() |
![]() |
施工事例データ
|
|
||||
|
|
||||
|
|
![]() |
![]() |
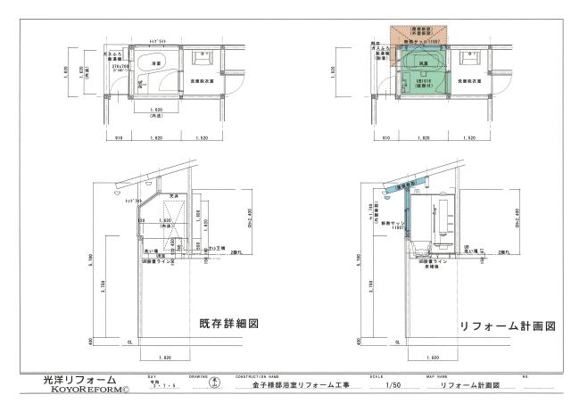
既存の浴室の構造を徹底的に調べて計画しました。 2階にあるため調査にも足場が必要ですが、遠くから確認をして図面を起こして、これならいけるというところまでしっかり計画しました。とても難しいリフォームでしたがうまく納めることができました。 |
|---|
![]() |
![]() |
![]() |
![]() |
| 大きな開口部がある浴室でした。 | とても開放感があっていいのですが何せ寒い。 | 天井までサッシの為すべて撤去になります。 |
![]() |
![]() |
![]() |
![]() |
| 解体工事が始まりました。 | 2階なので搬出も大変です。 | シートで囲って雨風をしのぎます。 |
![]() |
![]() |
![]() |
| 解体が完了して設備配管です。 | 新しく屋根をかけて開口部を作ります。 | 形ができてきました。 |
![]() |
![]() |
![]() |
| 断熱サッシを取付て断熱材を入れます。 | ユニットバスの組立です。 | ユニットバスの組立が完了しました。 |
![]() |
![]() |
![]() |
| すばらしい浴室になりました。 | 外部も形がすっかり変わりました。 |
![]() |
![]() |
| 脱衣室から見た浴室です。 | 暖房も付いて暖かく明るい浴室になりました。 |






















































